WETTBEWERB
DORFGEMEINSCHAFTSHAUS
LICH-BETTENHAUSEN
ANERKENNUNG
NEUBAU EINES GEMEINDEHAUSES
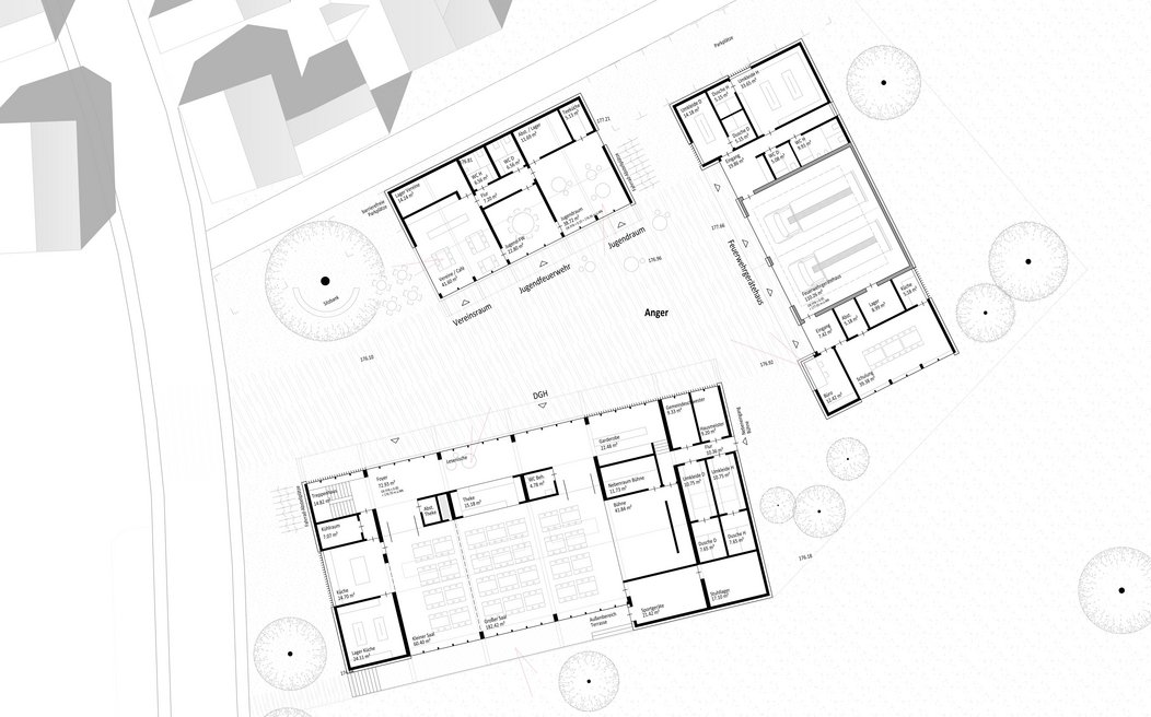
Das neue Dorfgemeindehaus Lich-Bettenhausen, das Feuerwehrgerätehaus sowie das Jugend- und Vereinshaus gruppieren sich um einen gemeinschaftlichen Dorfplatz. Dieser kann von allen Bewohnenden genutzt werden und steht als Ort des Zusammenkommens für vielfältige Nutzungsmöglichkeiten offen. Durch die Aufteilung der Funktionen auf drei Baukörper wird die städtebauliche Körnung und Maßstäblichkeit der Nachbarbebauung aufgenommen und gleichzeitig den topographischen Verhältnissen Rechnung getragen.
|
Projektart: |
Realisierungswettbewerb |
|
Auslober: |
Magistrat der Stadt Lich |
|
Ort: |
Lich |
|
Zeitraum: |
2023 |
|
Größe: |
ca. 1300 m² BGF |
Die Anbindung des Plangebietes erfolgt über die vorhandene Zufahrt zum Grundstück an der Untergasse bzw. über den kleinen Weg nördlich des Grundstücks für die Parkplätze der freiwilligen Feuerwehr im rückwärtigen Grundstücksteil. Die große Robinie seitlich des Zufahrtbereichs prägt die Eingangssituation, eine große Bank lädt zum Verweilen in deren Schatten ein. Die angrenzenden Freibereiche des Jugend- und Vereinshauses beleben den Platz und dienen als Dorftreff der gesamten Gemeinde.
Auf dem Grundstück erstrecken sich die Neubauten als höhengestaffelte Baukörper. Durch die Ablesbarkeit der einzelnen Nutzungen ergibt sich ein lebendiges Geflecht mit klarer Orientierung, das dem dörflichen Maßstab gerecht wird. Das Gebäudeensemble gewährt Einblicke in die unterschiedlichen Nutzungsbereiche, die sich zum Teil in den Außenraum erweitern.
Die Dächer der Baukörper sind in Anlehnung an die umgebende Bebauung und Fortführung des Volumens des Feuerwehrgerätehauses als Satteldach ausgebildet. Durch große Dachüberstände werden geschützte Eingangs- und Aufenthaltsbereiche geschaffen sowie ein konstruktiver Sonnen- und Witterungsschutz gewährleistet.
Die Tragstruktur der Bauteile basiert auf einer klassischen Holzbauweise mit wirtschaftlichen Spannweiten, die erdberührten Bauteile werden in Stahlbetonbauweise ausgeführt.
