WETTBEWERB
REALSCHULE PLUS WESTERBURG
3. PREIS
ERWEITERUNG UND NEUORDNUNG IM BESTAND IN WESTERBURG
Das Erweiterungsgebäude schmiegt sich in der südöstlichen Ecke des Realschulpausenhofs an die bestehenden Grünflächen oberhalb der Wörthstraße an. Als dreigeschossiger Kubus mit quadratischem Fußabdruck fügt er sich in die Maßstäblichkeit des Bildungsstandortes ein. Entlang des Erweiterungsbaus bleibt die Sichtachse vom Zugang der Wörthstraße zum Haupteingang des Bestandsgebäudes erhalten.
|
Projektart: |
Realisierungswettbewerb |
|
Auslober: |
Verbandsgemeindeverwaltung Westerburg |
|
Ort: |
Westerburg |
|
Zeitraum: |
2021 |
|
Status: |
3. Preis |
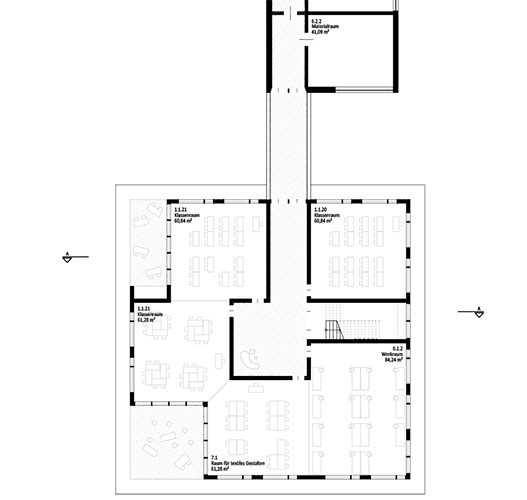
Der Neubau schließt über eine Brücke und unter Neuordnung der kopfseitigen Räume an die vorhandene innere Erschließung des Hauptgebäudes an. Zu Vorbereitungs- und Materialräumen umfunktionierte Klassenräume finden sich im Neubau wieder. Die so entstehende Torsituation rahmt den Zugang von der nordöstlich gelegenen Bushaltestelle in den Pausenhof und in das neue Erweiterungsgebäude.
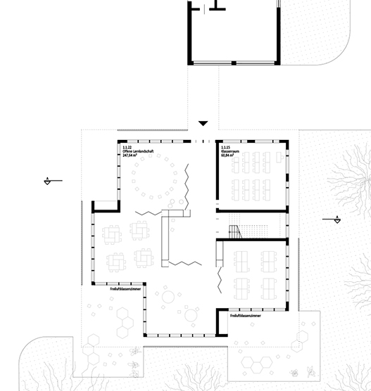
Es entstehen klare räumliche Bezüge und Wegebeziehungen zwischen den beiden Schulgebäuden und der Sporthalle. Je Geschoss sind fünf Raumvolumen um einen zentralen, flexibel nutzbaren Verteilerraum angeordnet und Bilden durch Rücksprünge verschiedene, den Klassenräumen zugeordnete Außenräume aus. Im Erdgeschoss fungiert die umlaufende Auskragung bei Regenpausen als Witterungsschutz und als konstruktiver Sonnenschutz der verglasten Fassade. Die südlich gelegenen Freiräume können als Freiluftklassenzimmer an die offene Lernlandschaft im Inneren angeschlossen werden. Bei Bedarf werden hier mobile Wände zur Abtrennung einzelner Klassenzimmer verwendet. Ein Einzelraum im Nordosten schirmt die Lernlandschaft vom Zugang an der Breslauer Straße ab. Zusätzlich zur Erschließung über das Bestandsgebäude leitet die Treppe Nutzer in die oberen Geschosse. Im ersten Geschoss sind neben Klassenzimmern Werk- und Textilräume und im zweiten Geschoss vier zusammenschaltbare Clusterräume und der naturwissenschaftliche Raum untergebracht.
Die Fassaden gewähren Einblicke und sind Ausdruck der Lern- und Experimentierwelt im Inneren. Außen gliedern hinterlüftete, vertikale Holzlamellen aus vorvergrautem Lärchenholz die Fassade. Durch den Einsatz von Holz wird der ressourcenschonende Anspruch des Schulbaus sichtbar. Holz strahlt Lebendigkeit und Nutzerfreundlichkeit aus. Der Öffnungsanteil der Fassadenflächen gewährleistet eine optimale Tageslichtversorgung der Lern- und Werkräume. Ein das Schulgebäude umspannendes Seilnetz stellt die Absturzsicherung der Außenbereiche dar und trägt Weinpflanzen, welche in der Zukunft den Erweiterungsbau umranken werden. Im Sommer vervollständigen die Pflanzen als grüner Hitzeschutz den konstruktiven Sonnenschutz des umlaufenden Balkons und der Loggien. Im Winter werfen sie das Laub ab, um die Sonne in die Klassenzimmer zu lassen. Das Seilnetz ist in den Teilbereichen ohne darüberliegende Auskragungen zum Boden geführt und erzeugt dort folglich eine erhöht dichte Begrünung.
