IT-SECURITY ACADEMY PETRISBERG
NEUBAU EINES BÜROGEBÄUDES MIT WOHNEINHEITEN IN TRIER
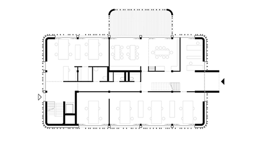
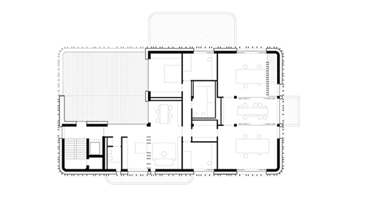
Am Rande des Petrisberg-Areals in Trier präsentiert sich der dreigeschossige Neubau als eigenständiger Baukörper in exponierter Lage und Sichtweite zum Campus der Universität Trier.
|
Projektart: |
Beauftragung |
|
Bauherr: |
save IT first GmbH |
|
Leistungsphasen: |
1–9 |
|
Ort: |
Trier |
|
Zeitraum: |
seit 2017 |
|
Größe: |
1.335 m² BGF |
|
Status: |
im Bau |
|
Fotos: |
Marco Becker |
|
|
Der Stahlbeton-Skelettbau und das zugrunde liegende Raster erlauben flexible Büroaufteilungen, Nebenfunktionen sind in einer zentralen Erschließungsachse untergebracht. Durch die thermische Aktivierung der Stahlbetonbauteile in Verbindung mit einer Luftwärmepumpe kann ressourcenschonend gekühlt und geheizt werden, je nach Erfordernis und Jahreszeit. Zur Steigerung der Effizienz werden sämtliche Betonoberflächen roh und sichtbar gelassen. Dem gegenüber steht die hocheffiziente, feinteilige Holzfassade mit ihrer unregelmäßigen, vertikalen Gliederung aus Holzlamellen. Die konsequente Regelmäßigkeit des Skelettbaus wird hierdurch bewusst aufgelockert und die Oberflächen durch ein wechselvolles Spiel von Licht und Schatten, sowohl im Außen- als auch im Innenraum, in Szene gesetzt.
